Building design Chandlers Ford plans for planning and building control by qualified property designer.






Renovation Project Chandlers Ford
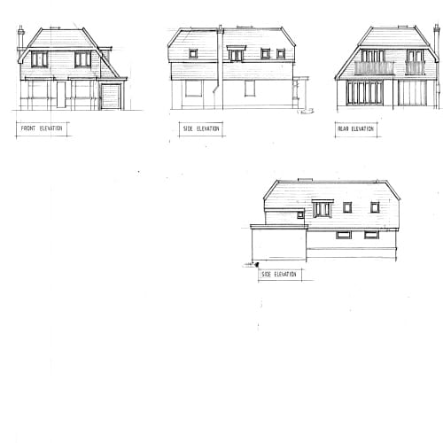
The clients approached Paul of ConServ Build as they were thinking of buying an old 2 bedroom bungalow which was in need of refurbishing with a view to upgrading / extending it before selling on.
They invited Paul to meet them to discuss their proposals and for guidance on possibilities for planning and building costs.
After initial discussions, they decided to push ahead with the purchase. Meanwhile, Paul set about designing a property to meet their bucket list of ‘wants’ and ‘would likes’.
ConServ Build managed to achieve most of the requests and to a cost that fitted with their budget.
In fact, the clients were so pleased with the finished result they decided to stay on in the property as they loved it so much.
Planning and Design
Planning Applications
