Property Conversions Chandlers Ford by local trusted builders. Make the most of the space you have with a loft or garage conversion.





Dream Home Conversion Chandlers Ford
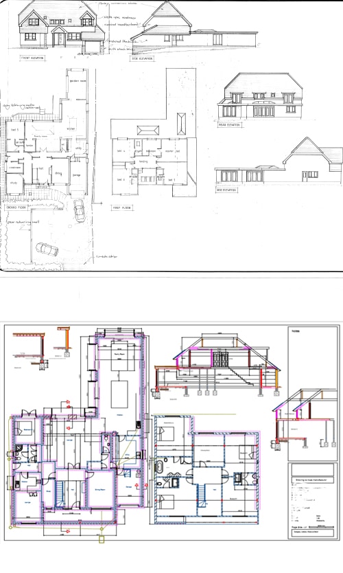
By extending the existing bungalow, raising the roof to make full use of the floor space and altering some existing rooms we achieved our client’s wishes and more. We were also now within a budget that allowed the client to finish their home to a beautiful specification which has an abundance of home automation and security.
The old bungalow now boasts 5 large bedrooms all served by ensuites. The master also has a dressing room that leads onto a balcony area overlooking the garden.
A large light and airy family room incorporating a show kitchen under 2 large skylights with 3 sets of bi-folding doors accessing the surrounding garden space. Adjacent to this is the family lounge/cinema space incorporating an 88” state of the art television. Serving the main kitchen is the utility room which in real terms is the main working kitchen. Off this is the garage space into which we were able to incorporate a mezzanine floor due to the gradient of this plot from back to the front of over 2m.
A large entrance hall boasting a bespoke cantilevered oak and glass staircase which leads to a glass-fronted landing area serving 4 of the bedrooms all naturally lit by a charming dormered window. The entrance door opens to a covered terrace that catches the sun all day and is not overlooked.
By clever use of the existing ground floor space, we have also incorporated a ground floor area that can be used by another member of the family as their ”own space”. It boasts a bedroom with ensuite, built-in wardrobes, a kitchen and a lounge area to chill and play computer games.
In addition to the ground floor, we were also able to add a sitting room, study and WC.
To the large garden, a summer house has been added incorporating a sauna, jacuzzi and gym space. Bifold doors open up to the decking for sunbathing.






Planning and Design
Planning Applications
